Bouwtekening Zelf Bed Maken Gratis PDF Download
Download gratis de bouwtekening voor een zelfgemaakt bed. Ontdek hoe magneten een bed laten zweven voor een uniek slaapproces. Ga aan de slag en creëer je eigen zwevende bed!
Download gratis de bouwtekening voor een zelfgemaakt bed. Ontdek hoe magneten een bed laten zweven voor een uniek slaapproces. Ga aan de slag en creëer je eigen zwevende bed!
Download gratis de bouwtekening voor een barmeubel en leer hoe je eenvoudig een werkbank binnenin maakt en bovenop een stijlvolle plek voor je glas creëert. Bouw je eigen bar!
Download gratis de bouwtekening voor de iconische Gerrit Rietveld Kratstoel. Gedetailleerd plan op A4, schaal 1:1, met precieze afmetingen in mm. Start je project vandaag nog!
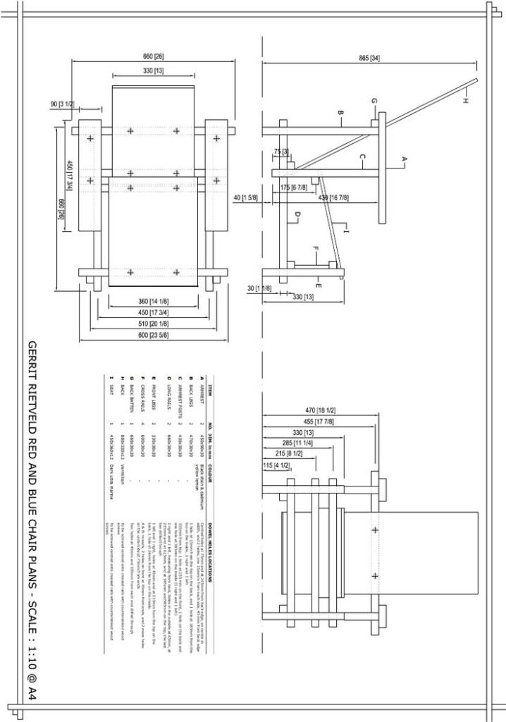
Download gratis de bouwtekening van de iconische Rietveld stoel in rood en blauw. Inclusief gedetailleerde afmetingen en schaal 1/10. Perfect voor architectuur- en designliefhebbers.
Download gratis bouwtekeningen om je eigen bar te maken. Inclusief instructies voor het monteren van pallets, benodigdheden zoals zaag, schroeven en planken. Begin vandaag nog met bouwen!
Download gratis de bouwtekening voor een steigerhouten bankje. Perfect om langs de wand van de hoofdentree te plaatsen. Inclusief details over de plafondafwerking van de hoofdentree.
Download gratis de bouwtekening hoekbank van steigerhout in PDF. Inclusief zaaglijst en materiaaloverzicht voor eenvoudig bouwen. Ideaal voor doe-het-zelvers en houtbewerkingsliefhebbers.
Download gratis het document voor het maken van een bouwtekening van een kast. Leer alles over de tekenomgeving van Floorplanner en maak eenvoudig interactieve plattegronden online.
Download een gratis bouwtekening voor een bed. Volg de gedetailleerde plattegrond en instructies om je eigen bed te maken. Begin eenvoudig met onze handige gids.