Bouwtekening Nestkast Koolmees Gratis PDF Download
Download gratis de bouwtekening voor een nestkast koolmees. Geniet van uren kijkplezier met je kinderen. Volg eenvoudige instructies om je eigen nestkastje te maken en de natuur thuis te beleven.
Download gratis de bouwtekening voor een nestkast koolmees. Geniet van uren kijkplezier met je kinderen. Volg eenvoudige instructies om je eigen nestkastje te maken en de natuur thuis te beleven.
Download gratis de bouwtekening voor een egelhuis, versie 1.5, bij www.egelbescherming.nl. Perfect voor natuurliefhebbers die egels willen beschermen. Voor updates contacteer info@egelbescherming.nl.
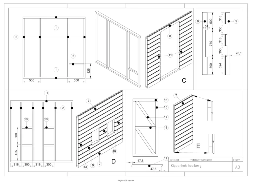
Download gratis de bouwtekening voor een kippenhok van betonplex, geschikt voor maximaal 6 kippen. Dit nachthok is speciaal ontworpen voor Red een Legkip.
Download gratis bouwtekening voor hondenhok: ontdek hoe belangrijk een goed ontwerp is, zelfs voor eenvoudige projecten. Volg de gedetailleerde stappen en creëer het perfecte hondenverblijf.
Download gratis de bouwtekening voor een eenvoudig halfopen nestkastje speciaal ontworpen voor roodborstjes. Creëer nu een veilige plek voor vogels in je tuin met onze gedetailleerde instructies.
Download gratis een bouwtekening voor een levensecht ooievaarsnest. Met een gedetailleerde ooievaarstekening op ruitjespapier, breng je de natuur dichter bij huis. Perfect voor knutselprojecten!
Download gratis de bouwtekening voor het maken van een vleermuiskast. Let op de houtdikte van 18mm en zorg dat de invliegopening niet groter is dan 1,5 cm.
Download gratis de bouwtekening voor een eekhoornnestkast! Leer hoe eekhoorns hun nest bekleden met bladeren en mos. Perfekte oplossing om roofdieren buiten te houden. Ontdek meer en download nu!
Download gratis de bouwtekening voor een konijnenhok. Met zaaglijst en gedetailleerde instructies van MAKERS praxis. Maak zelf eenvoudig je eigen konijnenhok met onze stap-voor-stap handleiding.
Download gratis de bouwtekening voor een egelhuisje en bescherm egels met jouw creatie. Versie 1.5 beschikbaar op egelbescherming.nl. Stuur updates naar info@egelbescherming.nl. Ontdek meer en bouw vandaag nog!